El complejo de lujo de la Bahía Ionian.
Diseñado para un estilo de vida mediterráneo, el ”Ionian Bay Resort” será uno de los complejos turísticos más exclusivos de Saranda y de toda la costa. Es lujoso, la forma extraordinaria de la estructura y las características arquitectónicas exclusivas combinarán comodidad y modernidad con las últimas tecnologías de ingeniería y llevarán
la construcción a otro nivel.
Además, este proyecto disfruta de una ubicación verdaderamente privilegiada y privilegiada al estar ubicado en la parte más desarrollada de la ciudad de Saranda y tener una cobertura de primera línea de playa tan extensa que garantizará la comodidad y privacidad de todos. Rodéense de relajación y paz y recuperen las hermosas experiencias de las reuniones familiares y dejen que la belleza los sumerja.
Si le encanta vivir en uno de los complejos turísticos más emblemáticos de Saranda en Albania y desea disfrutar de un estilo de vida exclusivo frente al mar, restaurantes frecuentes, cafeterías, gimnasios y busca experiencias de lujo excepcionales, entonces Ionian Bay Resort es su
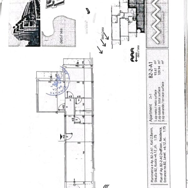
oportunidad de inversión perfecta.Disponemos de varios apartamentos con medidas desde 69M2….. Desde 2750 el Metro cuadrado, todos con vista al mar.
Features List
Amenities
- Air Conditioning
- Soundproof Windows
- Balcony



